木造住宅の外壁基礎知識【後編】〜材料と種類
中庭.パティオ.コートハウス.
それらの言葉に対して,みなさんどんなイメージをお持ちでしょうか?
中庭というと,ロの字型の建物に四方を囲まれたスタイルを想像される方も多いかもしれませんが,基本的には「建物に囲まれた」「外から守られた」庭を指すので,個人的にはロの字にはこだわらず,コの字型.=型.L型の場合も,道路や公共部から守られた環境にある庭を総称して中庭と呼んでいます.
中庭の型
そもそも中庭型住宅は,和洋問わず歴史的にも古くからあるスタイルの建て方です.
ヨーロッパや中国の中庭型集合住宅然り,京都の町屋然り.共通して言えるのは,外敵が多かったり,人が密集して暮らす都市部だったりといった,環境が厳しい場所で家を建てる時の,自衛と採光通風の確保を両立させるための手段として用いられてきたスタイルです.
現代の都市部の住宅密集地においてこそ,ふさわしいスタイルの家とも言えます.
ヨーロッパ伝統の中庭型配置@スペインバルセロナ
では,どんな敷地でも気持ちのよい中庭は作れるものでしょうか?
残念ながら,中庭型住宅は敷地を選ぶといわざるをえません.
作り方によっては,せっかくの中庭が暗く,圧迫感がある気持ちの悪いだけの空間になってしまうからです.
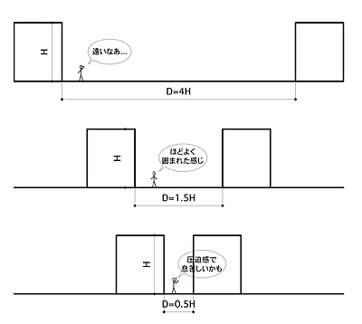
気持ちのよい外部空間を作る際の指標としてD/H(ディー・バイ・エイチ)という概念があります.奥行を高さで割った数値ですが,これが4以上となると「囲まれた」感じが薄くなり,逆に1以下となると圧迫感や威圧感を与えやすい.D/H=1〜2くらいがちょうど気持ちのよい外部空間となるといわれています.
D/Hの関係
一般的な二階建て住宅の高さは5.5m程度.単純に考えると最低でも5.5m×5.5mの大きさの中庭が最低限ということになってしまいますが,それだけの広さの中庭を取ろうとすると,三方囲いのコの字型配置でも,最低で150㎡以上の敷地面積が必要になってしまいます.
そこで圧迫感を軽減する建築的なテクニックとしては,以下の三つがあります.
①中庭側の高さ方向のボリュームを欠き取る
②室内から見たときの視界の高さを制限する
③視界の抜けを作る
①については,見た目としてのD/Hをちゃんと適正にとる方法です.
屋根の勾配を中庭側に向けたり,バルコニーやルーフテラスを作ったりと,いろいろなバリエーションがありますが,最も正攻法な手法です.
それも難しい場合.中庭に出た時は圧迫感があったとしても,室内から中庭を眺めた時に適正に見せる方法として,②の中庭に面する窓の高さをあえて低くして,見える範囲をコントロールする方法があります.
坪庭に面する低い地窓や,雪見障子・御簾・縁側や低く深い軒など,日本の伝統住宅で多用されてきた手法です.
町家坪庭例 左:杉本家住宅 右:河井寛次郎記念館
③は囲まれたプロポーションの圧迫感は諦めた上,視線の抜けを一部に作ってあげることで,空間全体の印象を和らげる手法です.
抜けた先が空や緑など,良好な環境でないと,効果が半減する場合もあります.
写真はリスボン旧市街アラファマ地区です.丘の斜面に自然発生的にできた,不定形の区画によって囲まれた道路が不定形の中庭のように,適度な囲まれ感と抜けとを併せ持ち,外とも中ともつかないような不思議な魅力の都市空間ができています.
上記のテクニックを活かすにも,中庭が明るさを保てる日照が入る程度のD/Hが確保できることが前提です.方位や周辺環境によって「明るさ」が取れる寸法は変わってきますが,中庭の計画が可能な敷地条件は以下の通りです.
・家を建てられるまとまった形で120㎡程度(旗竿敷地であれば竿に当たる通路以外の面積)
・それより狭い場合は,正方形に近い形状より細長い形状の方が有利
(京町家はウナギの寝床と呼ばれる道路に対して奥に極端に長い敷地形状の有効活用として発達した形式です)
・道路の位置は北・東・西側にある方が有利
土地を買って,建築士に相談したらうまくいかない,という悲劇にならないよう,中庭型の住宅をお考えの方は土地を買う時の参考にしてみて下さい.
とはいえ,上記に当てはまらなければ不可能,というわけでも,当てはまれば確実にうまくいく,というわけでもありません.
中庭は,微妙な寸法設定で印象が大きく変わってしまいます.
中庭型住宅をお考えの場合,可能であれば土地をご購入される前に,建築士などの専門家に相談した方が安心です.
次回のコラムでは,2018年に竣工した,弊社設計の茅ヶ崎の家をご紹介しながら,中庭型住宅の魅力をひもといていきます.



