【罰金のリスクも?】長期優良住宅の点検義務を放置するデメリット。メンテナンス計画と費用の目安を専門家 が解説
こんにちは!ジョーアブロードの福澤です。
建築業界ではBIMの導入が進んでいますが、意匠・構造・設備といった各分野において、BIM施工図の活用が広がっています。
BIMを活用することで、設計情報を三次元データとして管理できるようになり、施工前の検討精度の向上や、現場での手戻り低減につながる特徴の一つです。
さらに、建物完成後においても、設備情報や部材情報をデータとして蓄積・管理できるため、点検・修繕・更新計画など、建物のライフサイクル全体にわたる維持管理にも役立ちます。
今回は、BIM施工図の基礎知識とBIM意匠図を解説するとともに、国内相場と比較して約30%のコスト削減を実現できる外注サービスについてもご紹介します。
BIM施工図とは?

BIM施工図とは、建物の意匠・構造・設備といった情報を、BIM(Building Information Modeling)上で三次元モデルとして作成し、施工に必要な情報を統合的に管理した施工図を指します。
従来の2D図面では、平面図や断面図を組み合わせて情報を読み取る必要がありましたが、BIM施工図では、建物全体を立体的に確認しながら検討を行うことが可能になります。
BIM施工図から確認できる主なポイントを挙げてみました。
・構造体と設備(配管・ダクト・配線)の干渉状況や納まりの確認
・設備配置の妥当性(天井内・PS内・設置スペース・メンテナンススペース)
・高さ関係、レベル差、スリーブ位置・開口位置などの整合性確認
・施工手順を考慮した施工性の事前検討
・施工前の不整合・設計ミスの早期発見、および維持管理計画への活用
これらは、2D図面だけでは把握が難しかったポイントです。
では、実際にBIM施工図を見ると、どのようなことが可能になるのでしょうか。
BIM施工図を見ながら解説|BIMだからこそ実現できること
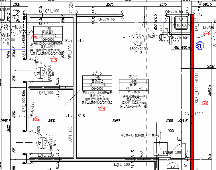
こちらは、BIM意匠図の平面図の一部です。
建築DXを象徴するBIM施工図は、三次元モデルから生成された「情報を持つ図面」です。線や形状を示すだけの図面ではなく、意匠・構造・設備の情報を統合したデータとして管理されている点が2D図面との大きな違いです。
この図面では、ダクトや配管、スリーブ位置に加え、壁や梁などの構造体が同一空間上で管理されています。BIMでは、これらの情報を三次元空間の中で同時に確認できるため、施工前の段階で干渉や納まりを検証することが可能になります。
また、各部材に厚み・素材・仕様などの属性情報が登録されており、壁厚や開口寸法、設備クリアランスをモデルから正確に数値抽出できます。
高さ関係やレベル差についても、数値情報と視覚情報の両方から確認できる点が特徴です。例えば、天井高さ(CH)、床レベル、機器高さといった情報は、モデル寸法や属性情報として紐づいているため、天井内に設備が納まるか、メンテナンススペースが確保できるか、点検口の位置が成立するかといった内容まで、施工前に検討することができます。
このようにBIMは、「建てる前に、デジタル上で一度“完工”させる」技術ともいえます。
設計・施工・維持管理につながる建物データを事前に構築することで、建築DXを支える基盤としての役割も担っています。
図面とモデルが常に同期された「最新情報の共有」
BIMでは、設計変更や修正内容がモデルと図面に連動して反映されます。
そのため、関係者全員が常に最新の情報を共有しながらプロジェクトを進めることができます。
特に複数の関係者が関わるプロジェクトにおいては、情報の認識ズレを防ぎ、円滑な意思疎通を実現する点も大きな強みです。
BIM活用を支える技術パートナーとして/ ジョーアブロード
国内では近年、BIM対応人材の不足により、外注コストが上昇傾向にあります。
こうした状況を踏まえ、弊社(株)ジョーアブロードでは早期から海外(ベトナム・ネパール)に自社拠点を構築し、オフショアによるBIM受託体制を強化してまいりました。
日本の設計基準や実務を熟知した責任者のもと、現地の優秀なBIM技術者が実務を担当することで、日本基準の品質を維持しながら、BIMモデリングにおいて最大約30%のコスト削減を実現しています。
これまで当社では、工場・ビル・病院・学校など、設備計画が複雑な大規模建物のBIM作成を数多く受託してまいりました。
日本での就業経験を持つ技術者も在籍しており、日本語でのコミュニケーションにも問題ありません。
BIMに関するご相談やご質問がございましたら、些細なことでもお気軽にご連絡ください。
設備BIMについての詳細は、こちらの記事をご覧ください。
設備BIM施工図を詳しく解説~3Dモデリング外注の流れ~
Joh Abroad(ジョーアブロード)の主なサービス内容
◆BIMモデリング、BIMアウトソーシング:設計図・施工図・意匠図など、住宅・非住宅問わず対応
◆2D図面作成(CAD業務):意匠図・施工図・確認申請図面など各種図面対応
◆省エネ計算、構造計算、BELS、ZEH申請サポート:建築物省エネ法に基づく計算・申請業務をワンストップで対応
◆長期優良住宅申請サポート:住宅性能向上・補助金活用に向けたトータルサポート
◆住宅補助金の代行申請業務:みらいエコ住宅2026事業など、最新の補助制度にも対応
◆人材紹介:ベトナム・ネパールエンジニアのご紹介


