【罰金のリスクも?】長期優良住宅の点検義務を放置するデメリット。メンテナンス計画と費用の目安を専門家 が解説
建設・住宅業界では、現場だけでなく “図面を描く人材” の不足がますます深刻になっています。
「図面作成が追いつかない」「人が足りず作図担当がいない」「急ぎの修正に対応できない」
こうした悩みを抱えている企業様はとても多いです。
そこで注目されているのが、図面外注サービス。
図面作成やトレースを外部に依頼することで、人手不足や作業の負担を大きく軽減できます。
今回は、ジョーアブロード が提供する図面外注サービスをご紹介します。
なぜ「図面外注」が必要とされているのか?
1. 人手不足が深刻化している
設計担当・CADオペレーターの採用が難しく、
「現場はあるけど図面を描く人が足りない」という企業が増えている
2. 図面作成には意外と時間がかかる
最新図面の確認、寸法整理、トレース、修正対応……
社内だけで回すには負担が大きく、メイン業務が圧迫されがち。
3. 繁忙期・スポット案件に対応しにくい
急ぎの修正依頼や案件集中時は、社内だけで捌くのは困難。
外注はリソース調整の“受け皿”として非常に効果的です。
ジョーアブロードの図面外注サービスとは?
ジョーアブロードでは、意匠図・施工図・確認申請図面などのCAD図面作成を代行しています。
手書きのラフなスケッチや古い図面、PDFや写真データからでも、正確なCADデータとして再現可能です。
作成した2D図面は、3Dモデルへの変換も対応しており、設計・プレゼン・施工管理など幅広く活用いただけます。
国内相場に比べ、30%〜50%ほど低価格で高品質な図面作成を実現しています。
CAD図面料金表
| NO | 図面項目 | 単価(円) |
|---|---|---|
| 1 | 配置図 | 7,000円~ |
| 2 | 平面図・立面図・断面図 | 9,000円~ |
| 3 | 短計図 | 9,000円~ |
| 4 | 平面詳細図 | 9,000円~ |
| 5 | 部分詳細図 | 9,000円~ |
| 6 | 展開図 | 7,000円~ |
| 7 | 建具表 | 7,000円~ |
| 8 | 電気設備図・給排水面図 | 7,000円~ |
図面の内容・密度・ご希望の納品形式によって料金が変動するため、具体的な金額はご依頼内容に応じてお見積りいたします。
3Dパース料金や各種図面作成の費用一覧は、弊社(株)ジョーアブロードのこちらからご確認ください
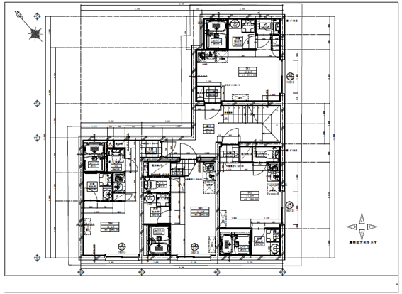
<例:展開図>
<例:平面図>
私たちはベトナム・ネパールに自社CADセンターを設置し、建築・設備分野に精通した技術者チームを擁しています。
さらに、日本の大学で建築を学び、国内ゼネコンで豊富な実務経験を積んだマネージャーが品質管理とプロジェクト指導を行っています。
当社独自の体制により、日本の設計基準を満たした高品質な図面を作成しながら、国内相場に比べ最大30~50%のコスト削減も実現しています。
お気軽に無料相談・お見積りをご依頼ください。
関連記事:2D図面・ CADトレース外注~3Dパース・設備図も対応可~
Joh Abroad(ジョーアブロード)の主なサービス内容
◆BIMモデリング、BIMアウトソーシング:設計図・施工図・意匠図など、住宅・非住宅問わず対応
◆2D図面作成(CAD業務):意匠図・施工図・確認申請図面など各種図面対応
◆省エネ計算、構造計算、BELS、ZEH申請サポート:建築物省エネ法に基づく計算・申請業務をワンストップで対応
◆長期優良住宅申請サポート:住宅性能向上・補助金活用に向けたトータルサポート
◆住宅補助金の代行申請業務:子育てグリーン住宅事業など、最新の補助制度にも対応
◆人材紹介:ベトナム・ネパールエンジニアのご紹介


