リビング階段で後悔!NGポイント7選 5&6&7
こんにちは住まいの専門家かみだにです。
最も多いお悩みが、この間取りで良いのかどうかが分からない、というものです。
間取りの失敗を避ける上で、特に見落としがちなポイント7選の最後をご紹介します。
5. 階段下の有効活用
5つ目は、階段下の有効活用です。
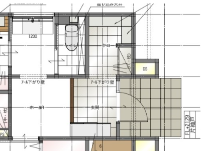
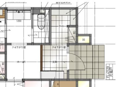
階段の面積は、1畳半~2畳分のスペースを利用しますから、階段下を有効に活用できるかどうかは、家にゆとりを生むために重要になりますよね。
まず、配置に問題なければトイレとして利用することが最適だと思います。
理由は2つあります。
1つ目は、トイレに天井高を求めないので、階段下で十分だということです。
2つめは、トイレは階段に近い配置とすることが、家全体の中で、誰にとっても利用しやすい理想の位置になるからです。
各階にトイレがあったとしても、一方のトイレを誰かが使っている場合、階段に近いと利用しやすく便利ですよね。
そしてトイレ以外で、階段下の活用する方法は、皆さんのご想像通り収納です。
ですが、収納の場合は注意点があります。階段下の空間なので高さに制限があるという点です。
クローゼットとして配置している形状を見かけたりしますが、実際には服をかけたりできる部分はかなり限定されます。
また、短辺側に扉をつける場合も、奥の物を出し入れするのは大変なので、日常的な使用は難しいため、収納として利用する場合は、おまけ程度のイメージで計画する方が良いと思います。
手洗いの洗面や洗濯機なども階段下空間に配置できるので、利用できる方法を様々検討してみてください。
ちなみに私の家は完全なオープンにしていますが、子供はそれでも秘密基地と名付けて遊んでいます。
ま、秘密の定義はその人次第ですからね。
6. リビング階段の本当のメリット
6つ目は、リビング階段の本当のメリットです。
リビング階段は結構後悔するという声が多い間取りです。
主に空調や音について、性能面で失敗したという声が多いように思います。
またそれ以外に、子供の友達がリビング内を通るので落ち着かない。というような意見もあります。
ただし、これにはちょっと待った!
それがそもそもリビング階段のメリットなんですよね。
子供が帰ってきたり、友達を連れてきたときも、顔を合わせることができて、友達とも強制的にコミュニケーションが取れるわけです。
逆を言えば、家に友達がいることを知らなくて、廊下でばったり鉢合わせるよりは遥かに良くないですか?
『なんかうるさいな』と思って子供部屋に叱りにいったら、『あらお友達来てたの?オホホホホホ』みたいな。
とはいっても、これは人それぞれ考え方がありますから、検討するための問題定義にとどめておこうと思います。
私はリビング階段については、先ほどのようなメリットに加えて、廊下を大幅に削減できるというメリットもありますので、特段問題なければオススメしたい間取りの一つです。空調や音などの性能面
は、間取りに比べて解決策はいくらでもありますからね。
それに、その対策も廊下を削減した分の差額費用で十分に賄えます
7. 玄関から見えるトイレ
最後の7つ目は、玄関から見えるトイレです。
ここまでのご説明でも何度か出てきていますが、最近の傾向で廊下をほとんど設けない間取りが主流になってきているため、トイレは玄関ホールに設けるという間取りが非常に多いです。
これ自体に問題は全くありませんが、トイレの出入り口が玄関の来客から見えてしまうというパターンが非常に多いです。
さらにこれは、少し間取りを工夫すれば避けられるという場合が多いので、手っ取り早く参考になる間取りをご紹介します。
トイレを玄関ホールから90度角度を変えて配置し、最近よくご要望がある玄関付近の手洗いを兼ねて設ける形です。
場合によっては、脱衣室やキッチンへの動線も配置することで、回遊導線を利用したプライバシー性とスムーズな動線計画を両立させた間取りとなります。
是非、参考にしてください。
今回は、「間取り初心者必見!後悔する間取り7選」をお伝えしました
設計者によって知識や経験が違いますので多少プランの違いは出てきますが、皆さん自身に間取りの知識が身につけば、設計者が誰でも問題ありませんよね。
もちろん、私の意見も一つの見方でしかないので、正解でもなんでもないですが、色々な方向から見る目を持つことは、間違いなく、良い間取りを手に入れるためのプラスになると思います。
何か一つでも参考になればと思います。
一緒に最高の家づくり目指して頑張っていきましょう!


