転ばないためにつくる
家全体を見渡して、最適な「素材」を探す。
今度、キッチンの改修工事をさせていただくことになりました。
今回の改修工事では、キッチンの間取りを考えるところから始まります。
この改修工事では、壁も天井もすべて解体してゼロから作り直すので、設計の自由度は無限大です。
壁がなくなることで、アイランドキッチンもできるし、コの字型もできる。
まずは考えられる限りのパターンをすべて洗い出すところから始めました。
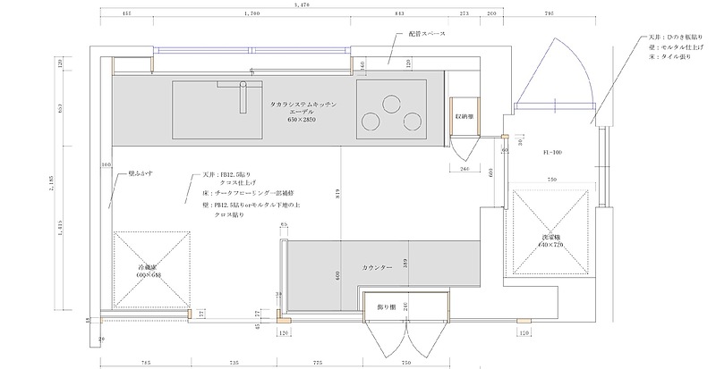
その中で、今回僕が選んだのは「アイ型」のプランです。
お客さんは現在お一人住まいで、普段それほど凝った料理はされないこと。何より「掃除のしやすさ」を優先したいということ。
そうした暮らしの背景と、キッチンにかけられるご予算のバランスをじっくり考えた結果、この形がベストだと判断しました。
プランを決める上では、技術的な検証も欠かせません。
「水道、ガス、電気はどこまで移動できるか」「設置する向きや位置は作業しやすいか」「寸法的に無理がないか」。
一つひとつ、現場と図面を突き合わせながらパズルを解くように詰めていきました。
そして、一番悩んだのが「仕上げ」です。
新しい場所だけが周囲から浮いてしまわないよう、僕は常に「全体のバランス」を大切にしています。
これを料理に例えるなら、メインが焼肉なのに刺身が並んでいたり、ピザやパスタを作ったのにお吸い物が出てきたりするような感覚に似ています。
一つひとつは間違いなく「いい物」なのですが、組み合わせとしては少し違いますよね。
家づくりも同じで、新しく作る場所だけを立派にするのではなく、和・洋・中、どの雰囲気でまとめるのか。家全体を見渡して、素材を馴染ませていくことが重要です。
そこで今回は、リビング側の壁にはもともとの家に使われていたピーラー材(米松)を。キッチンの中の床はチーク材。
これらとチグハグにならないよう、新しい建具や家具の「お友達」を、今ある家の中から探しました。
例えば、建具には既存のものと同じピーラーの突板を使い、家具は脱衣所の雰囲気に合わせてチークを選びました。
ただ、家具に関しては掃除のしやすさを考えてメラミン化粧板を採用し、キッチン本体も手入れがしやすいホーローを選びました。取手も周りに合わせてシルバーで統一しています。
細部まで一つひとつ吟味しては、また一度立ち止まって家全体を見渡す。「やりすぎていないか」「お客さんの暮らしに合っているか」「予算内に収まっているか」。
そうやって、何度も何度も「これでいいか」を僕に問いかけながら決めたプランです。
これから始まる工事で、新しく作るキッチンがどう家に馴染んでいくのか、今からとても楽しみです。
ETETORU WOOD ホームページ



