フードコートにお客様のお店がオープンします。
こんにちは、福井オフィス・ラボです。
今から8年前にご紹介を頂き、
事務所開設に際し、レイアウトと床カーペット貼りなど
対応させていただきましたお客様より
事務所増床で再レイアウトと什器選定、床工事を
いつものレイアウトを駆使して打ち合わせを重ね
無事に12月27日に引っ越し完了しました。
まずは、一番最初の2017年のレイアウトです。

この頃から3Dでイメージをつかんでいただけ
新事務所でスタートされました。
次に、2022年に事務スペースと打ち合わせスペースを
分けたいとのご要望で、レイアウトを一新
パーテーションを組み合わせて再レイアウトを
その年に1名増員されるとのことで、
再度パーテーション組み合わせを変更して
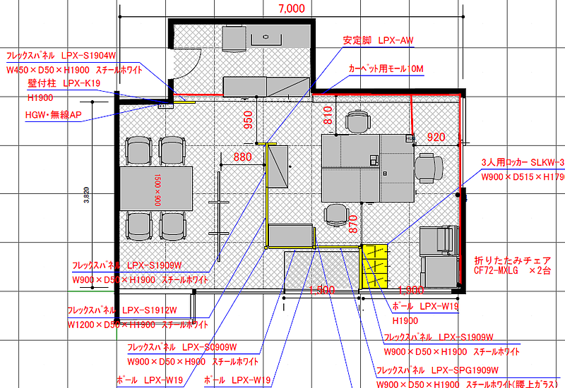
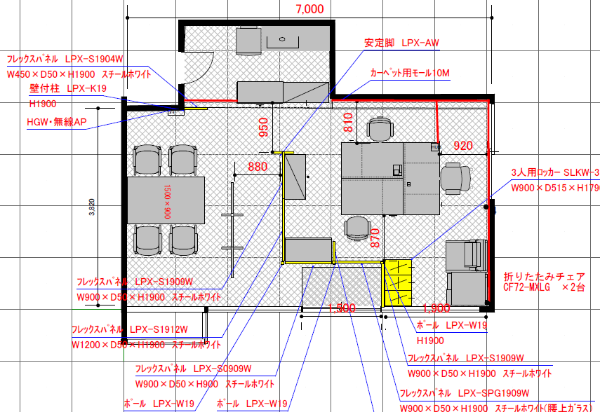
下記のレイアウトで気に入って頂き
リニューアルが完成しました。

スペースを有効に利用したコンパクトながら
パーテーションで上手く視覚コントロールができた
レイアウトとして傑作となりました。
そして、時が流れ、、、
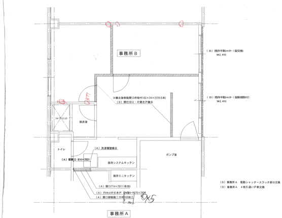
2024年10月に奥のスペースを借りて
つなげるかもしれないとご相談を頂き、
設計士の方と現地打ち合わせと図面を頂き
正式に再レイアウトをご依頼いただきました。
今現在使用している「事務所A」と
後ろにある「事務所B」を
壁を貫通させ出入口を作り一つの事務所にします。
まずは、事務所B内の壁を壊して1フロアにし
AとBの出入口を作ります。
蛍光灯のLED化もお願いしました。
こちらは、管理会社様が工事を行っていただき
フラットな状態より、当社でカーペット施工からスタートです。
次回、PART2でご紹介します。
是非、当社へご依頼しませんか?
オフィス移転、オフィス家具のことなら◆
福井オフィス・ラボへ fukui-officelab.com
◇OA機器販売、コンピュータ・リユース機器販売のことなら◇
有限会社八王商会へ www.office-yao.jp


