ペットの葬儀社ピースリー白山店様その1
こんにちは、福井オフィス・ラボです。
今回のお客様は、
新社屋建設に早期ご相談いただき、
設計段階よりお打ち合わせを重ね、
12月14日に引っ越し完了しました。
電気関係も当社のお客様のお会社で知っている方が担当、
NTTの電話機移設、光回線移設も知っている方が担当と
いうことで、相談しながら進めることができました。
実は、オフィスレイアウトも当初は対応しておりましたが
途中で設計事務所の方に代わり、担当は外れましたが
1.カメラ選定と取付
2.WiFi機器選定と取付
3.光引込、配線と電話機移設
4.プロジェクター天吊り・電動昇降式スクリーン取付
を担当させていただきました。
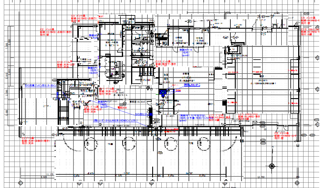
光引込からLAN配線、電話配線、プロジェクタ、スクリーンの場所なども図面に落とし込みして
いつものCADを駆使して見える化できました。
今回、新築物件につき
配線関係は、担当の電気工事会社様でお願いしており
こちらで作成した図面を共有頂き、配線図に落とし込みを
してもらいました。
こちらの図面(ぼかしを入れてます)をお渡しし
また、現地で建設中の下見もしました。
壁ができる前に下見が重要で、今回は
天井を設けない部分も多く、早期に現場打合せと
配線図面作成を行いました。
また、スケジュール表も作成して、
引っ越しまでのスケジュールを細かく
記載して、こちらも見える化で共有します。
引っ越しで一番大切なのは、NTTの光など電話・インターネットの移設です。
引っ越しと同時に業務をスタートとなると
インターネット回線がないと話になりません。
こちらのノウハウは、NTT担当者と直接話ができる
当社へお任せください。
配電盤へ打ち合わせ通り配線をしてもらいました。
ケーブルテレビの同軸ケーブルも配線してあります。
PoEHUB(電源供給HUB)や渡り用のHUB
OAタップで電源を取りセッティングします。


2階の会議室に電動スクリーンを取付ます。

スクリーン昇降スイッチも事前に配線をしてもらい
照明スイッチの隣に取付ます。
詳細な打ち合わせをしたので、スクリーン用の電源
昇降スイッチ配線もすっきりと。
液晶プロジェクターも天井に取付で完成です。

無線APも電波の範囲を計算して7カ所
設置しました。
外部アンテナもつけて指向性も考慮してます。
法人モデルを選び、電源はPoEHUBから電源供給として
トラブル時には、一括して電源再起動できるようにしてます。



カメラはドーム型のブラックで内装デザインに合わせました。

外のカメラも外装に合わせてブラックのバレット型を
採用いただきました。
こちらも、電源はPoEHUBから電源供給として
トラブル時には、一括して電源再起動できるようにしてます。
以上の作業は、引っ越しまでに完了しております。
お客様は、
当日までのお荷物の整理、引っ越し後のお荷物の整理や
建物の仕様お打ち合わせなどに専念いただき、
14日の引っ越し当日も
パソコンの移設、配線
複合機の移設(上下分離作業)
インターネット、複合機からの印字テストなどなど
細かい作業も行い、新社屋での営業開始を
スムーズにするお手伝いをさせていただきました。
是非、当社へご依頼しませんか?
オフィス移転、オフィス家具のことなら◆
福井オフィス・ラボへ fukui-officelab.com
◇OA機器販売、コンピュータ・リユース機器販売のことなら◇
有限会社八王商会へ www.office-yao.jp


